日本橋TCビル
アクセスAccess
物件概要Overview
- 建物種別
- 事業用
- 構造
- 鉄骨鉄筋コンクリート(SRC)
- 竣工年月
- 1990年12月
- 建物面積
- --
- 新耐震基準
- --
- 総戸数
- --
- 賃貸戸数
- --
- 地上階数
- 8階
- 地下階数
- 1階
- 用途地域1
- --
- 用途地域2
- --
- 備考
設備詳細Equipment
- 設備
-
エレベーター
エレベーター2基
- 24時間使用
- 空調
-
個別空調
- 床仕様
- トイレ
-
男女トイレ別
- セキュリティ
-
機械警備
- インターネット
- 店舗
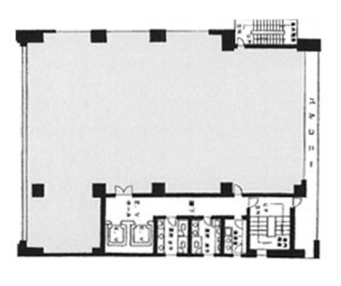
日本橋TCビルの空室情報Other compartments
| 平面図 | 所在階 | 坪数 面積 |
賃料 共益費 |
保証金 敷金 |
償却 礼金 |
入居時期 | 詳細 | お気に入り |
|---|---|---|---|---|---|---|---|---|
|
4階 -- |
108.73坪 359.47㎡ |
要相談 -- |
-- -- |
-- -- |
即時 |
詳細を見る |
アクセスマップAccess Map
ご希望の条件やご予算、移転時期など、
どんなことでもまずはお聞かせください。
物件情報やオフィス・事務所の
ご希望の条件やご予算、移転時期など、
どんなことでもまずはお聞かせください。
どんなことでもまずはお聞かせください。
物件情報やオフィス・事務所の
内見に関するご相談など
お気軽にご相談ください
ご希望の条件やご予算、移転時期など、どんなことでもまずはお聞かせください。
-
物件の資料請求、お問い合わせ
ご希望の条件をお聞かせいただければ、
最適な物件をご提案いたします。
資料請求やご質問など、
まずはお気軽にお問い合わせください。 -
内見希望
気になる物件がございましたら、実際に現地をご覧いただけます。立地や設備、周辺環境など、写真だけでは分からない詳細をご確認ください。
-
オフィスの移転に関する相談
移転時期、予算、規模など、お客様のご要望に合わせたオフィス移転プランをご提案。課題解決から新オフィスの選定まで、サポートいたします。
似た条件の物件Properties
-
清月堂本店ビル9階
56.2万円
42.58坪 / 140.76㎡
東京都中央区銀座7丁目16-15
山手線
「新橋」駅 徒歩9分
P's GAIENMAE4階
58万円
19.90坪 / 65.80㎡
東京都港区北青山2丁目7-27
銀座線
「外苑前」駅 徒歩2分
P's GAIENMAE10階
86.4万円
21.23坪 / 70.20㎡
東京都港区北青山2丁目7-27
銀座線
「外苑前」駅 徒歩2分
P's GAIENMAE10階
82.9万円
21.23坪 / 70.20㎡
東京都港区北青山2丁目7-27
銀座線
「外苑前」駅 徒歩2分お問い合わせContact
- 1必要項目の入力
- 2入力内容の確認
- 3お問い合わせ完了