恒産第3ビル
アクセスAccess
物件概要Overview
- 建物種別
- 事業用
- 構造
- 鉄骨鉄筋コンクリート(SRC)
- 竣工年月
- 1975年12月
- 建物面積
- --
- 新耐震基準
- --
- 総戸数
- --
- 賃貸戸数
- --
- 地上階数
- --
- 地下階数
- --
- 用途地域1
- --
- 用途地域2
- --
- 備考
設備詳細Equipment
- 設備
-
エレベーター3基
- 24時間使用
- 空調
-
セントラル空調
- 床仕様
- トイレ
-
男女トイレ別
- セキュリティ
-
機械警備
- インターネット
- 店舗
恒産第3ビルの空室情報Other compartments
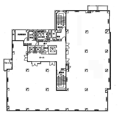
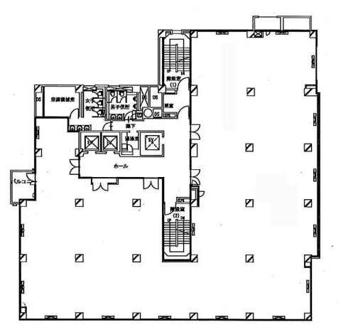
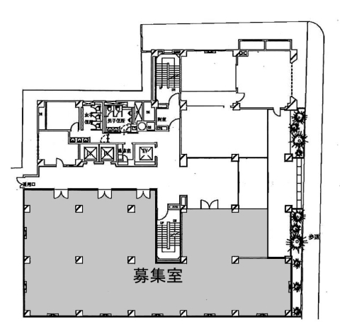
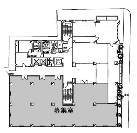
| 平面図 | 所在階 | 坪数 面積 |
賃料 共益費 |
保証金 敷金 |
償却 礼金 |
入居時期 | 詳細 | お気に入り |
|---|---|---|---|---|---|---|---|---|
|
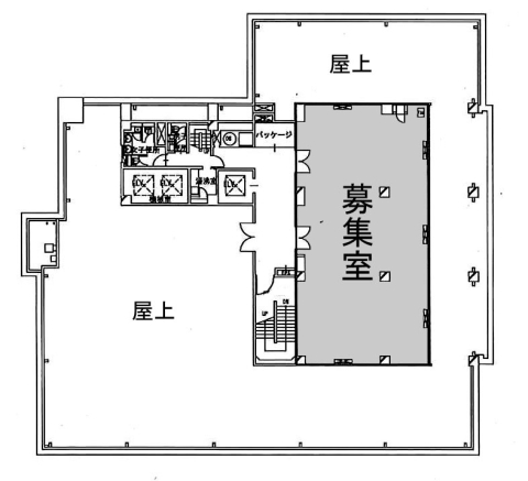
10階 -- |
54.72坪 180.89㎡ |
120.38万円 -- |
-- 12ヶ月 |
-- -- |
即時 |
詳細を見る | |
|
1階 -- |
119.77坪 395.93㎡ |
263.49万円 -- |
-- 12ヶ月 |
-- -- |
即時 |
詳細を見る | |
|
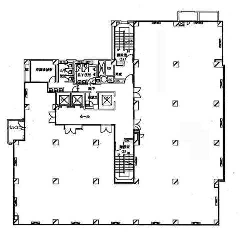
3階 -- |
214.86坪 710.28㎡ |
472.69万円 -- |
-- 12ヶ月 |
-- -- |
即時 |
詳細を見る | |
|
4階 -- |
214.86坪 710.28㎡ |
472.69万円 -- |
-- 12ヶ月 |
-- -- |
即時 |
詳細を見る |
アクセスマップAccess Map
ご希望の条件やご予算、移転時期など、
どんなことでもまずはお聞かせください。
物件情報やオフィス・事務所の
ご希望の条件やご予算、移転時期など、
どんなことでもまずはお聞かせください。
どんなことでもまずはお聞かせください。
物件情報やオフィス・事務所の
内見に関するご相談など
お気軽にご相談ください
ご希望の条件やご予算、移転時期など、どんなことでもまずはお聞かせください。
-
物件の資料請求、お問い合わせ
ご希望の条件をお聞かせいただければ、
最適な物件をご提案いたします。
資料請求やご質問など、
まずはお気軽にお問い合わせください。 -
内見希望
気になる物件がございましたら、実際に現地をご覧いただけます。立地や設備、周辺環境など、写真だけでは分からない詳細をご確認ください。
-
オフィスの移転に関する相談
移転時期、予算、規模など、お客様のご要望に合わせたオフィス移転プランをご提案。課題解決から新オフィスの選定まで、サポートいたします。
似た条件の物件Properties
-
晴海アイランドトリトンスクエアオフィスタワーY39階
要相談
494.60坪 / 1635.05㎡
東京都中央区晴海8-11
都営大江戸線
「勝どき」駅 徒歩4分
音羽ブリックス4階
9万円
坪 / 34.65㎡
東京都文京区音羽1丁目25-10
有楽町線
「江戸川橋」駅 徒歩4分
音羽ブリックス8階
13万円
坪 / 34.65㎡
東京都文京区音羽1丁目25-10
有楽町線
「江戸川橋」駅 徒歩4分
ACN日本橋PLACE9階
要相談
19.91坪 / 65.85㎡
東京都中央区日本橋2丁目16-6
銀座線
「日本橋」駅 徒歩2分お問い合わせContact
- 1必要項目の入力
- 2入力内容の確認
- 3お問い合わせ完了