TEL 03-3574-9651

営業時間 09:00~18:00 定休日:土日祝

井桁ビル 5階

賃料
44万円
坪単価
1.22万円
坪数/面積
35.9坪
/
118.68㎡
所在階
5階
/
--
管理費・共益費
--
保証金
6ヶ月
償却
2ヶ月
敷金/礼金
--
/
--

TEL 03-3574-9651

営業時間 09:00~18:00 定休日:土日祝

物件概要Overview

物件名
井桁ビル
階数
5階
竣工
1971年06月
耐震
用途/仕様
事務所

アクセスAccess

住所
東京都千代田区岩本町2丁目8-15
駅徒歩
山手線
神田」駅
徒歩7分
日比谷線
小伝馬町」駅
徒歩4分
都営新宿線
岩本町」駅
徒歩4分

設備詳細Equipment

設備
エレベーター
24時間使用
24時間利用可能
空調
個別空調
床仕様
トイレ
男女トイレ共用
セキュリティ
機械警備
インターネット
光ファイバー
店舗

備考Remarks

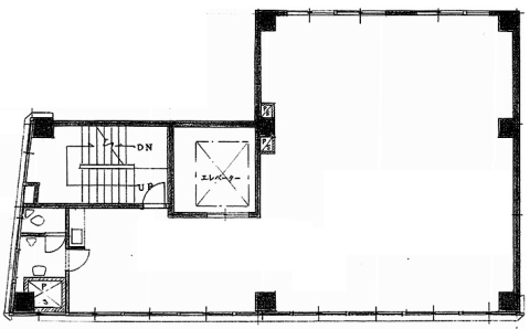
大型エレベーター(16人乗)
保証会社、家財保険加入必須 

担当者のコメントComment

井桁ビル(千代田区岩本町2-8-15)は、東京メトロ銀座線「末広町」駅、JR線「御徒町」駅、東京メトロ千代田線「湯島」駅徒歩3分の6線3駅利用可能な神田金物通り沿いの賃貸オフィスビルです。 

設備面では24時間使用可、個別空調完備、機械警備、光ファイバー導入済みです。大型エレベーター(16人乗り)と洗面台付の広々としたトイレが自慢です。井桁ビルは1971年竣工、地上7階・地下1階建、鉄骨鉄筋コンクリート造です。

こちらの物件は弊社の管理物件でもありますので何かトラブル等があった際にはすぐに対応することができます。

物件の1階にはカフェが入っておりますので、ちょっとした息抜きにいかがでしょうか? 

都心屈指のオフィス街を擁し、再開発も活発に行なわれている千代田区。

株式会社ダク・エンタープライズでは、千代田区の貸事務所・貸店舗情報をご紹介しております。これからこの街で起業する方、オフィス拡大のための物件をお探しの事業主様は、ぜひご相談ください。

ご希望の条件やご予算、移転時期など、
どんなことでもまずはお聞かせください。

物件情報やオフィス・事務所の
内見に関するご相談など
お気軽にご相談ください

ご希望の条件やご予算、移転時期など、
どんなことでもまずはお聞かせください。
  • 物件の資料請求、お問い合わせ

    ご希望の条件をお聞かせいただければ、
    最適な物件をご提案いたします。
    資料請求やご質問など、
    まずはお気軽にお問い合わせください。

  • 内見希望

    気になる物件がございましたら、実際に現地をご覧いただけます。立地や設備、周辺環境など、写真だけでは分からない詳細をご確認ください。

  • オフィスの移転に関する相談

    移転時期、予算、規模など、お客様のご要望に合わせたオフィス移転プランをご提案。課題解決から新オフィスの選定まで、サポートいたします。

お問い合わせContact

  1. 1必要項目の入力
  2. 2入力内容の確認
  3. 3お問い合わせ完了
要望
物件情報
御社名
お名前
ふりがな
メールアドレス
電話番号
お問い合わせ内容