TEL 03-3574-9651

営業時間 09:00~18:00 定休日:土日祝

P's GAIENMAE 10階

賃料
86.4万円
坪単価
4.07万円
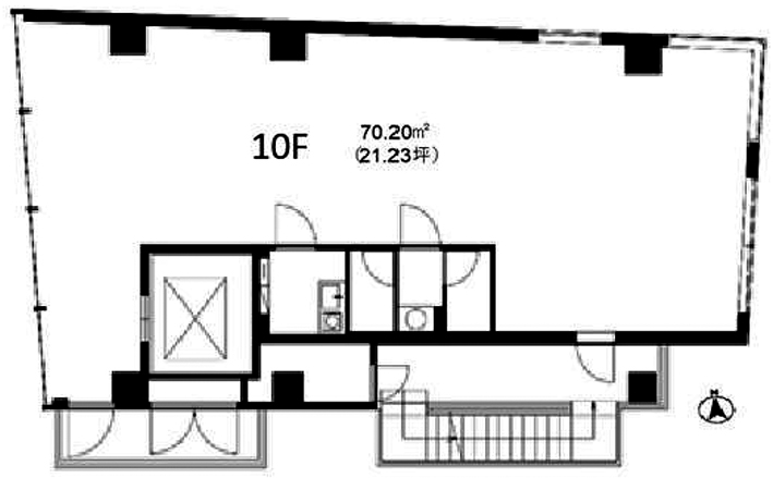
坪数/面積
21.23坪
/
70.2㎡
所在階
10階
/
--
管理費・共益費
7万円
保証金
10ヶ月
償却
1ヶ月
敷金/礼金
--
/
--

TEL 03-3574-9651

営業時間 09:00~18:00 定休日:土日祝

物件概要Overview

物件名
P's GAIENMAE
階数
10階
竣工
2022年11月
耐震
新耐震
用途/仕様
店舗

アクセスAccess

住所
東京都港区北青山2丁目7-27
駅徒歩
銀座線
外苑前」駅
徒歩2分
半蔵門線
表参道」駅
徒歩10分
千代田線
表参道」駅
徒歩10分
都営大江戸線 徒歩10分

設備詳細Equipment

設備
24時間使用
24時間利用可能
空調
個別空調
床仕様
OAフロア
トイレ
男女トイレ共用
セキュリティ
機械警備
インターネット
光ファイバー
店舗
店舗利用可
飲食不可
スケルトン

備考Remarks

定期借家契約3年(再契約相談可) 
飲食不可 
損害保険加入必須 

担当者のコメントComment

P's GAIENMAE(港区北青山2-7-27)は、東京メトロ銀座線「外苑前」駅徒歩2分、東京メトロ半蔵門線、千代田線「表参道」駅各徒歩10分、都営大江戸線「青山一丁目」駅徒歩10分と複数路線利用可能な神宮スタジアム通りに面する賃貸オフィス店舗ビルです。 

設備面としては24時間使用可、個別空調、OAフロア、機械警備、光ファイバー導入済、エレベーター有です。竣工は2022年、地上10階建、鉄骨造の新耐震基準適合物件です。 

高級感のある外観が目を引くスタイリッシュなビルディングです。


北青山は港区の中でも洗練された雰囲気を持つ人気のエリアであり、ファッション・デザイン・ビジネスが融合する街として知られています。表参道や青山通りを中心に、多くの来訪者やビジネスパーソンが行き交う活気ある地域です。

また北青山エリアは、南青山や神宮前、渋谷区神宮前エリアにも隣接しており、複数のエリアへスムーズに移動できる点も魅力の一つです。周辺には大手企業のオフィスや外資系企業、デザイン事務所などが集積しており、クリエイティブ産業の中心地としても発展しています。


交通アクセス・周辺環境ともに優れた条件が揃っている港区北青山エリア。オフィスや店舗の出店にも最適な立地です。

北青山エリアの物件情報はダク・エンタープライズが数多くご紹介しております。 貸事務所、貸店舗をお探しの際はお気軽にご相談ください。

ご希望の条件やご予算、移転時期など、
どんなことでもまずはお聞かせください。

物件情報やオフィス・事務所の
内見に関するご相談など
お気軽にご相談ください

ご希望の条件やご予算、移転時期など、
どんなことでもまずはお聞かせください。
  • 物件の資料請求、お問い合わせ

    ご希望の条件をお聞かせいただければ、
    最適な物件をご提案いたします。
    資料請求やご質問など、
    まずはお気軽にお問い合わせください。

  • 内見希望

    気になる物件がございましたら、実際に現地をご覧いただけます。立地や設備、周辺環境など、写真だけでは分からない詳細をご確認ください。

  • オフィスの移転に関する相談

    移転時期、予算、規模など、お客様のご要望に合わせたオフィス移転プランをご提案。課題解決から新オフィスの選定まで、サポートいたします。

お問い合わせContact

  1. 1必要項目の入力
  2. 2入力内容の確認
  3. 3お問い合わせ完了
要望
物件情報
御社名
お名前
ふりがな
メールアドレス
電話番号
お問い合わせ内容