TEL 03-3574-9651

営業時間 09:00~18:00 定休日:土日祝

TSビル 3階

賃料
14.96万円
坪単価
1.76万円
坪数/面積
8.5坪
/
28.1㎡
所在階
3階
/
--
管理費・共益費
--
保証金
6ヶ月
償却
2ヶ月
敷金/礼金
--
/
--

TEL 03-3574-9651

営業時間 09:00~18:00 定休日:土日祝

物件概要Overview

物件名
TSビル
階数
3階
竣工
1989年10月
耐震
新耐震
用途/仕様
店舗・事務所

アクセスAccess

住所
東京都港区芝大門2丁目1-13
駅徒歩
山手線
浜松町」駅
徒歩4分
都営浅草線
大門」駅
徒歩2分
都営三田線
芝公園」駅
徒歩2分

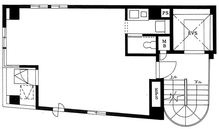
設備詳細Equipment

設備
エレベーター
24時間使用
空調
個別空調
床仕様
トイレ
男女トイレ共用
セキュリティ
インターネット
光ファイバー
店舗

備考Remarks

サービス店舗のみ 飲食不可 
使用時間23時まで
賃貸保証会社、火災保険加入必須 

担当者のコメントComment

TSビル(東京都港区芝大門2-1-13)は、JR線「浜松町」駅徒歩4分、都営大江戸線、都営浅草線「大門」駅各徒歩2分、都営三田線「芝公園」駅徒歩2分の複数路線複数駅利用可能な賃貸オフィス店舗ビルです。 


TSビルは1989年竣工、地上7階建て、鉄骨造の新耐震基準適合物件です。設備面としては個別空調、光ファイバー導入済、エレベーター有、給湯室有です。

サービス店舗ご相談可能ですのでお気軽に業種等ご相談下さい。


新橋や浜松町へもスムーズにアクセスができる芝大門エリア。
比較的落ち着いたエリアで、オフィス街として活気づいているため、港区内の貸事務所探し候補としてもおすすめです。

芝大門エリアで貸事務所・貸店舗をお探しなら、物件探しは株式会社ダク・エンタープライズまでお気軽にご連絡下さい。

ご希望の条件やご予算、移転時期など、
どんなことでもまずはお聞かせください。

物件情報やオフィス・事務所の
内見に関するご相談など
お気軽にご相談ください

ご希望の条件やご予算、移転時期など、
どんなことでもまずはお聞かせください。
  • 物件の資料請求、お問い合わせ

    ご希望の条件をお聞かせいただければ、
    最適な物件をご提案いたします。
    資料請求やご質問など、
    まずはお気軽にお問い合わせください。

  • 内見希望

    気になる物件がございましたら、実際に現地をご覧いただけます。立地や設備、周辺環境など、写真だけでは分からない詳細をご確認ください。

  • オフィスの移転に関する相談

    移転時期、予算、規模など、お客様のご要望に合わせたオフィス移転プランをご提案。課題解決から新オフィスの選定まで、サポートいたします。

お問い合わせContact

  1. 1必要項目の入力
  2. 2入力内容の確認
  3. 3お問い合わせ完了
要望
物件情報
御社名
お名前
ふりがな
メールアドレス
電話番号
お問い合わせ内容